Forum Suarium photograph

Forum Suarium

Use attributes for filter !
AddressVia di Propaganda, 00187 Roma RM, Italy
Date of Reg.
Date of Upd.
ID4046027
Send edit request

About Forum Suarium


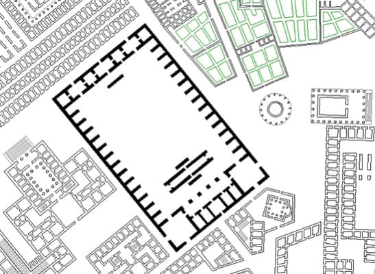
The Forum Suarium was the pork forum venalium of ancient Rome during the empire, mentioned first in two inscriptions dating c. AD 200.

Where is the Forum Suarium

Forum Suarium Map
Click on the photo of Forum Suarium to view it on Google Maps.

Forum Suarium Photos

Related Persons

Next Profile ❯